这是我们为葉外完成的第三家门店。
连锁品牌在早期成长中,容易陷入困惑。既担心一成不变的店铺形象会让品牌失去魅力,也担心漂移不定的风格让其难以在大众中形成深刻印象。变与不变是一个有意思的话题……
对于葉外而言,我们认为其核心价值不能变,「都市感」和「东方感」是关键。它是品牌的基因,负责连接拥有共同价值观的消费群体。「都市感」是对消费群体所在地生活方式的尊重和理解,而「东方感」则是品牌走向世界的重要辨识因素。因此在新店的设计上,我们对空间基调的一致性上保持克制,但是在体验和细节上融入了众多创新。
项目位于笋岗万象食家的一处临街铺位。在商场里做设计,就像是格式作文,会受到场地和管理方的诸多限制:商场既定的现代风格的玻璃幕墙,以及严格统一的外立面管理。想要在规定的内容格式中创造出独特的门面设计,而兼具成本和效率,我们需要另辟蹊径。区别于其他品牌按部就班地把品牌标志设置在规定的“一亩三分地”上,我们综合考量,放弃了这些区域。于是一个由地上“长出来”的巨大灯箱,成就整条街最具视觉识别度的门面。灯箱表面由一整块巨大的定制半透棉麻布料制作,内部则是一层柔光软膜,双层膜结构呈现出如同果冻般的肌理。
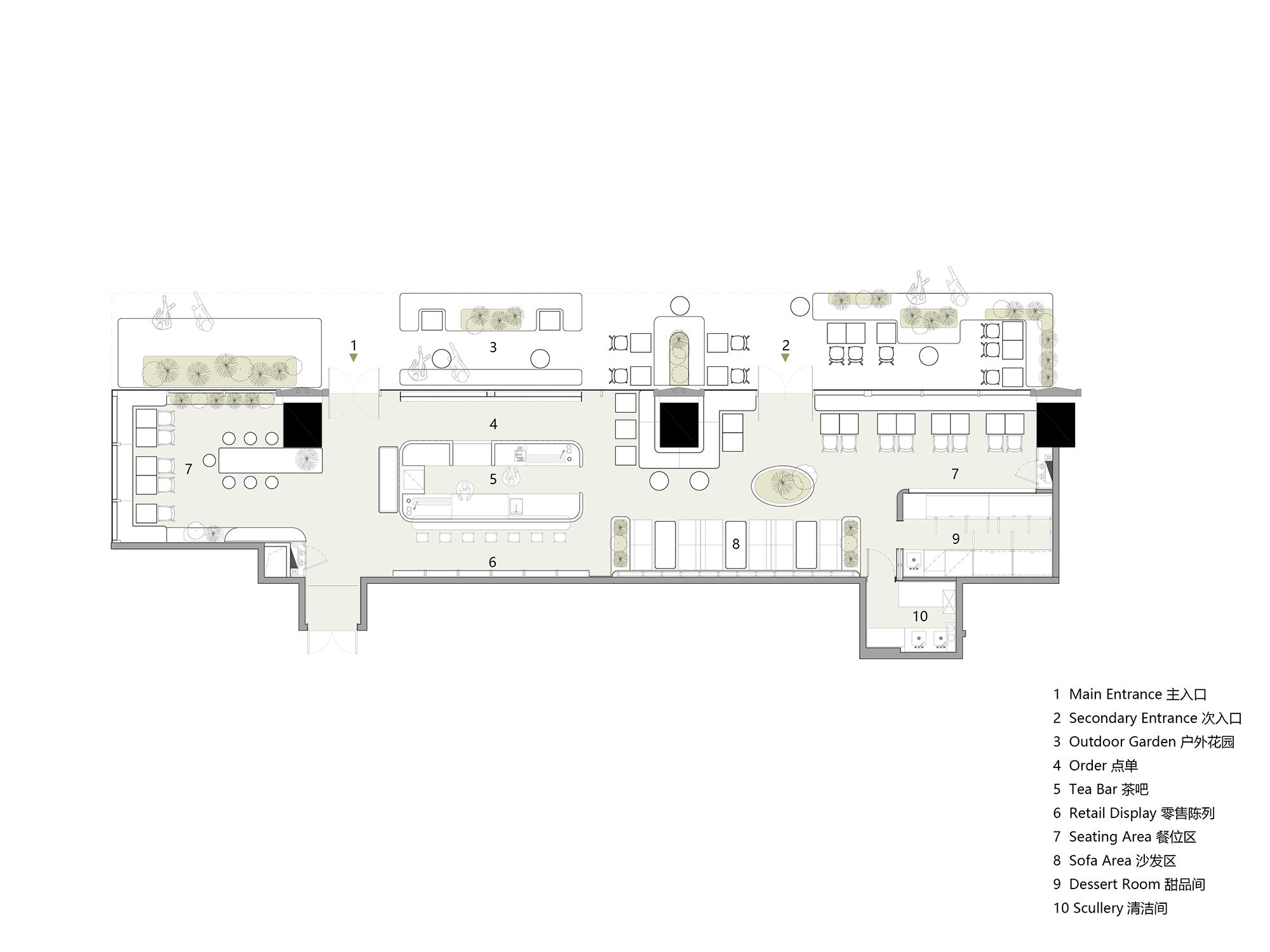
店铺的长度足足有30米,较长的对外展示面是优势,但是容易造成动线过长的问题。我们把吧台作为空间的中枢,大大缩短了场地两端的动线距离。同时功能上满足了点单、制作和展示的需求,它还是品牌与客人互动的重要场所。
新店加入了「茶饮+市集」的概念,我们重新设计了商品零售区。通过具有东方美学感的设计,商品若隐若现地呈现在棉麻布帘的后面,弱化了区域的零售感,提升展架的美学观赏性,让它们成为就餐环境的一部分;在布局上我们把商品分布式的散落在客人容易长时间停留的区域,避免集中式的零售区容易形成百货超市般的廉价陈列感;无屏障开放式的设计,也避免它们成为美术馆里“禁止触摸”的花瓶,拉近顾客与它们的距离,以便产生更多的连接和互动。
葉外门前有两棵大树,一棵是柏树,另外一棵也是。它们原本棣属商场的公共区域,但感觉属于店铺的一份子。受其启发,我们把外摆区域也做成了具备城市客厅的属性,它们不再是围起来的私家花园,而是外向型的友邻设计。人们可以无压力地在花丛里休憩,享受树荫下的阴凉和欣赏广场的风景。在间隙中感受到品牌的亲和力。
连锁品牌在延展过程中,难以每次都从0到1这样的整数里做颠覆性创新,也不必。我们觉得机会应该藏在0.1,0.2这样的小数点里。在设计中我们始终关注人在空间中的感受,处理好每一个与顾客连接的关键点,提升细节体验。在这个项目里,微创新或许要比推倒重来更有意义。
地点: 深圳万象食家
类型: 茶室
面积: 200㎡
年份: 2022





















