这是我们为葉外完成的第二家门店。
我们更关乎人在空间的感受。宏大的故事及浓艳的表达都不是我们擅长的,所有的设计都是围绕着“感觉舒适“这单一目的展开的,它是一切的开始……
区别于厚重的传统茶馆或单薄的新式奶茶店,葉外希望打造一个年轻人喜爱但不失体验品质的东方都市茶室,「都市感」和「东方感」是关键。「都市感」是强调「在地性」,建立对城市,对人的生活方式的充分理解和尊重。而「东方感」是对文化的传承和再现,是如土壤般重要的核心基调,也是本土品牌走向世界过程中,仍能保持其独特性的秘密。
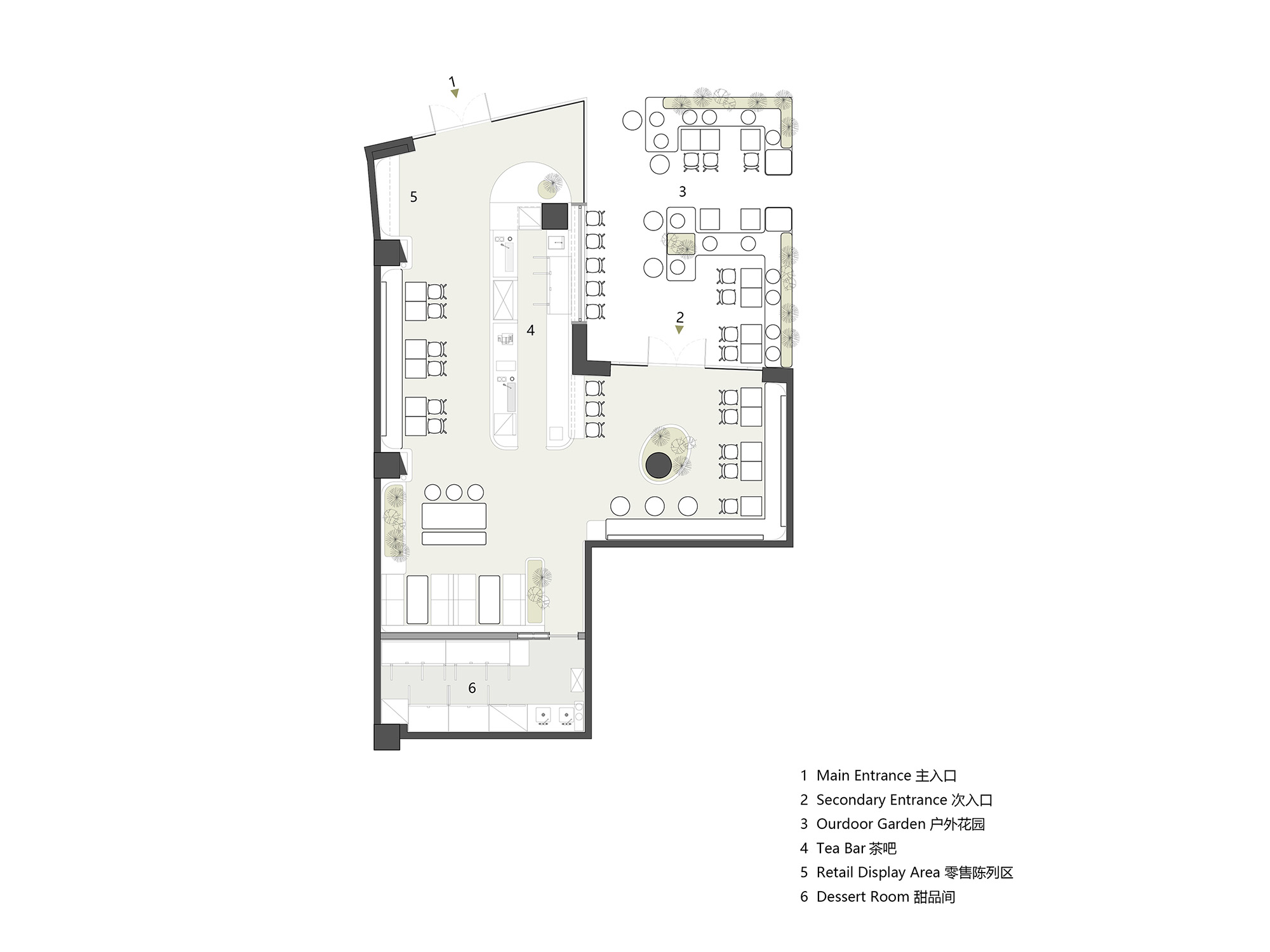
项目位于深业上城的一个独栋建筑,L型转角正对着宽阔的露天广场,但原始的建筑封闭且内部阴暗,它与外界本该有更好的连接。我们做的第一个改变是打通外立面封闭的墙壁,引入自然采光,同时把吧台设置在转角,使户外室内都能通过吧台有更多的连接。
城市生活的核心是社交。「都市感」的重点是对空间秩序的编排和社交氛围的营造。吧台是很重要的角色,它既是点单、制作、展示的地方,也是品牌与客人产生互动、增强社交感的绝佳场所。以吧台为核心,我们把庭院的感觉带入了室内,精心安排的绿植,通过分布式的布局,把空间分割成若干个小角落。区别于传统茶馆的厚重仪式感让人望而生畏,又或是奶茶铺的廉价快餐感,葉外试图在两者之间找到一个平衡,“亲和的精致感”才是我们追求的理想状态。
「东方感」的呈现在于感字,我们不希望简单的把传统的装饰纹样复刻一遍,更重要的是如何把刻在基因里「东方感」现代化表达。我们认为“轻盈,朦胧,神秘”是属于葉外的东方感。我们用统一的涂料粉刷了每个角落,包括墙壁、天花、座具、柜体等,首先让空间有一个宁静而统一基调;漫反射的光线系统,包括模拟的天光,拉索式的线条灯,让空间获得柔和而丰富的层次;半透明的布料呈现出独特的果冻肌理,随风摆动;模糊化处理的“葉外”图案在灯箱上若隐若现……
所有的表达都是在强调“感觉”,我们认为“感觉”要比“风格”有趣多了。
地点: 深圳深业上城
类型: 茶室
面积: 150㎡
年份: 2022























